

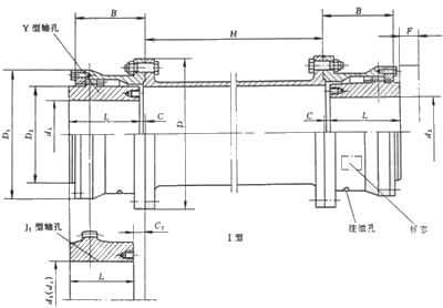
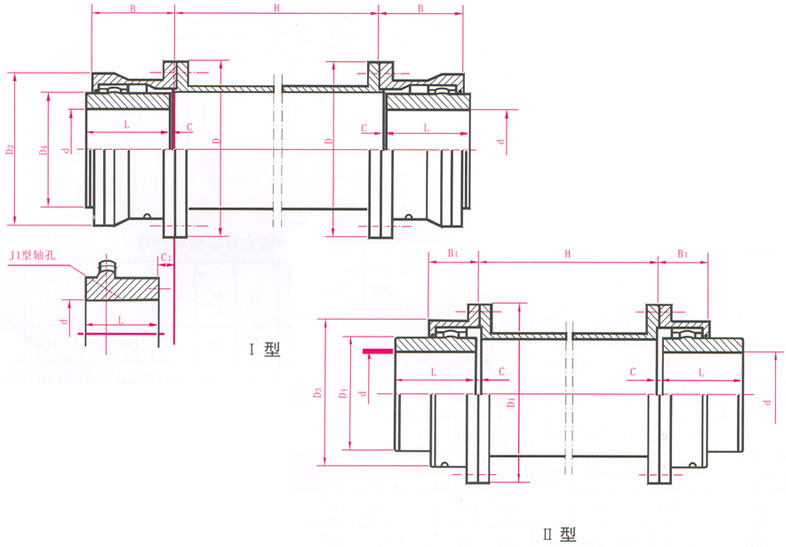
WGT型中間套鼓形齒式聯軸器:
鼓形齒式聯軸器屬于剛撓性聯軸器,齒式聯軸器是由齒數相同的內齒圈和帶外齒的凸緣半聯軸器等零件組成。外齒分為直齒和鼓形齒兩種齒形,所謂鼓形齒即為將外齒制成球面,球面中心在齒輪軸線上, 齒側間隙較一般齒輪大,鼓形齒聯軸器可允許較大的角位移(相對于直齒聯軸器),可齒的接觸條件,提高傳遞轉矩的能力,延長使用壽命。有角位移時沿齒寬 的接觸狀態。具有徑向、軸向和角向等軸線偏差補償能力,具有結構緊湊、回轉半徑小、承載能力大、傳動、噪聲低及維修周期長等優點,特別適用于低速重 載工況,如冶金、礦山、起重運輸等行業、也適用于石油、化工、通用機械等各類機械的軸系傳動。
中間套鼓形齒式聯軸器在工作時,兩軸產生相對角位移,內外齒的齒面周期性作軸向相對滑動,必然形成齒面磨損和功率消耗,因此,齒式聯軸器需在有良好和密封的狀態下工作。齒式聯軸器徑向尺寸小,承載能力大,常用于低速重載工況條件的軸系傳動,并經動平衡的齒式聯軸器可用于高速傳動,如燃汽輪機的軸系傳動。由 于鼓形齒式聯軸器角向補償大于直齒式聯軸器, 均采用鼓形齒式聯軸器,直齒式聯軸器屬于被淘汰的產品,選用者應盡量不選用。
鼓形齒式聯軸器的特點(與直齒式聯軸器相比有以下特點):
1、承載。在相同的內齒套外徑和聯軸器 大外徑下,鼓形齒式聯軸器的承載能力平均比直齒式聯軸器提高15~20%
2、角位移補償量大。當徑向位移等于零時,直齒式聯軸器的許用角位移為1o,而鼓形齒式聯軸器的許用角位移為1o30',提高50%。在相同的模數、齒數、齒寬下,鼓形齒比直齒允許的角位移大,
3、鼓形齒面使內、外齒的接觸條件,避免了在角位移條件下直齒齒端棱邊擠壓,應力集中的弊端,同時了齒面摩擦、磨損狀況,降低了噪聲,維修周期長。
4、外齒套齒端呈喇叭形狀,使內、外齒裝拆方便。
5、傳動達99.7%。
基于經上特點,目前, 已普遍以鼓形齒替代直齒式聯軸器。
